免费定制产品方案 预约实地考察
- 了解需求确定方案
- 签订合同如期生产
- 配送安装指导操作
- 免费培训长期售后
135-2505-6999


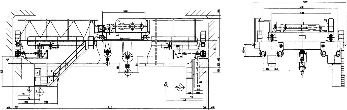
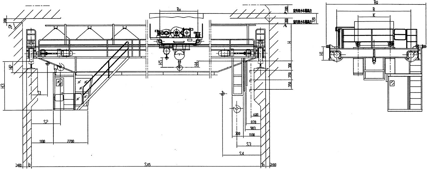
QDY吊钩桥式铸造起重机主要用于吊运熔融金属的冶金、铸造等场所,整机工作级别为A7,在主梁底部加设隔热层装置。起重机装配与试验符合国家质量监督检验检疫总局所发的质检办特[2007]375号文件。其它吊运熔融的非金属物料和吊运炽热固态金属的场所也可参照选用。(注:以下图中H0为大车缓冲器增加的高度。H0≤250)
环境条件:
1、起重机的电源为三相交流,额定频率为50HZ,额定电压为380V;
2、工作环境温度为-10~+60℃;
3、在+40℃的温度下相对湿度不超过50%;
4、如超过上述要求,根据用户需要按订货合同条款执行。
订货须知:
用户在定货或签订合同时,必须将本机的基本参数(额定起重量、起升高度、跨度等)描述清楚,以便提供满足工况要求和工作条件的产品。




实力保障 年产销97000余台
现有员工3100人,占地68万余平方米,拥有资产12.8亿元,480余家销售服务机构辐射国内外,各类加工设备1600余台(套)品牌保障 重机协会副理事长单位
已获部级、省级120余项荣誉称号,产品畅销全国30多个省市自治区与军工、核电、航天等国企集团建立了良好的业务关系质量保障 百道质检工序专人专职
完善的质量体系、严格的管理制度,已通过GB/T19001/ISO9001质量管理体系,GB/T24001/ISO14001环境管理体系等服务保障 售后24小时快速响应
按照合同要求为售出的设备进行安装、调试和培训买方技术人员,7*24小时专职客服快速响应服务,快速解决使用难题免费定制产品方案 预约实地考察
全国统一服务热线:
135-2505-6999
扫一扫
关注我们
全国免费服务热线
135-2505-6999